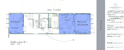
^The specific shophouse i'm doing
@ Pradipat Road, Sapankwai, Bangkok.
There are many different types of facades even there are along in the same road path. Some has big advertisement covered, some has cages and some are sunlight screen. Also want to emphasize the roofs which they are quite different from each other.
some reference pictures from internet, looking and comparing other type or style of shophouses









No comments:
Post a Comment